Haus Mose

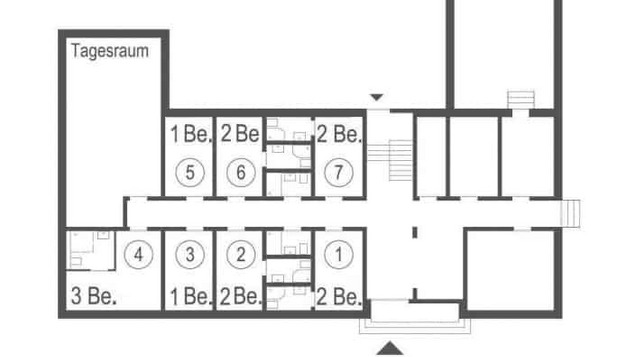
32 Betten in 18 Zimmern mit eigener Nasszelle, verteilt auf 3 Etagen, erwarten Sie in Haus Mose.
Einzelzimmer im Erdgeschoss und Obergeschoss haben die Bäder zur Alleinbenutzung über den Flur
Außerdem befindet sich auf jeder Ebene ein gemütlicher Aufenthaltsraum, das Obergeschoss verfügt über einen Kamin.
Dieses Haus ist nicht barrierefrei, die oberen Etagen sind nur über eine Treppe zu erreichen.
Kurzinfos
- Erdgeschoss 13 Betten
- Obergeschoss 13 Betten
- Dachgeschoss 6 Betten
- 3 Tagesräume













